
4,082 Sqft Lot
4,082 Sqft Lot
Key Details
Property Type Commercial
Sub Type Mixed Use
Listing Status Active
Purchase Type For Sale
MLS Listing ID NJCM2005212
Year Built 1949
Annual Tax Amount $8,818
Tax Year 2024
Lot Size 4,082 Sqft
Acres 0.09
Lot Dimensions 48.00 x 85.00
Property Sub-Type Mixed Use
Source BRIGHT
Property Description
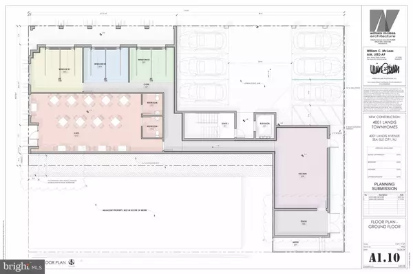
to use the Current Project Approval a potential new owner would need to aquire at their own cost the property at 20 40th st should they wish to use the currently approved plans:
The first floor of a newly constructed building on this lot must remain commercial. The second and third floors canl consist of up to 5 condos (for residential use). Each unit is approx. 1260 Sq Ft. The sixth unit must also remain commercial, potentially for managing the property (e.g., HOA or similar).
Location
State NJ
County Cape May
Area Sea Isle City City (20509)
Zoning COM
Interior
Hot Water Natural Gas
Heating Central
Cooling Central A/C
Heat Source Natural Gas
Exterior
Garage Spaces 6.0
Water Access N
Roof Type Other,Shingle
Accessibility None
Total Parking Spaces 6
Garage N
Building
Sewer Public Sewer
Water Public
New Construction N
Schools
School District Sea Isle City
Others
Tax ID 09-00040 02-00008 03
Ownership Fee Simple
Acceptable Financing Cash, Conventional, Other
Listing Terms Cash, Conventional, Other
Financing Cash,Conventional,Other
Special Listing Condition Standard


"My job is to find and attract mastery-based agents to the office, protect the culture, and make sure everyone is happy! "






